55 Green Mountain Drive

HOW DID WE GET HERE?
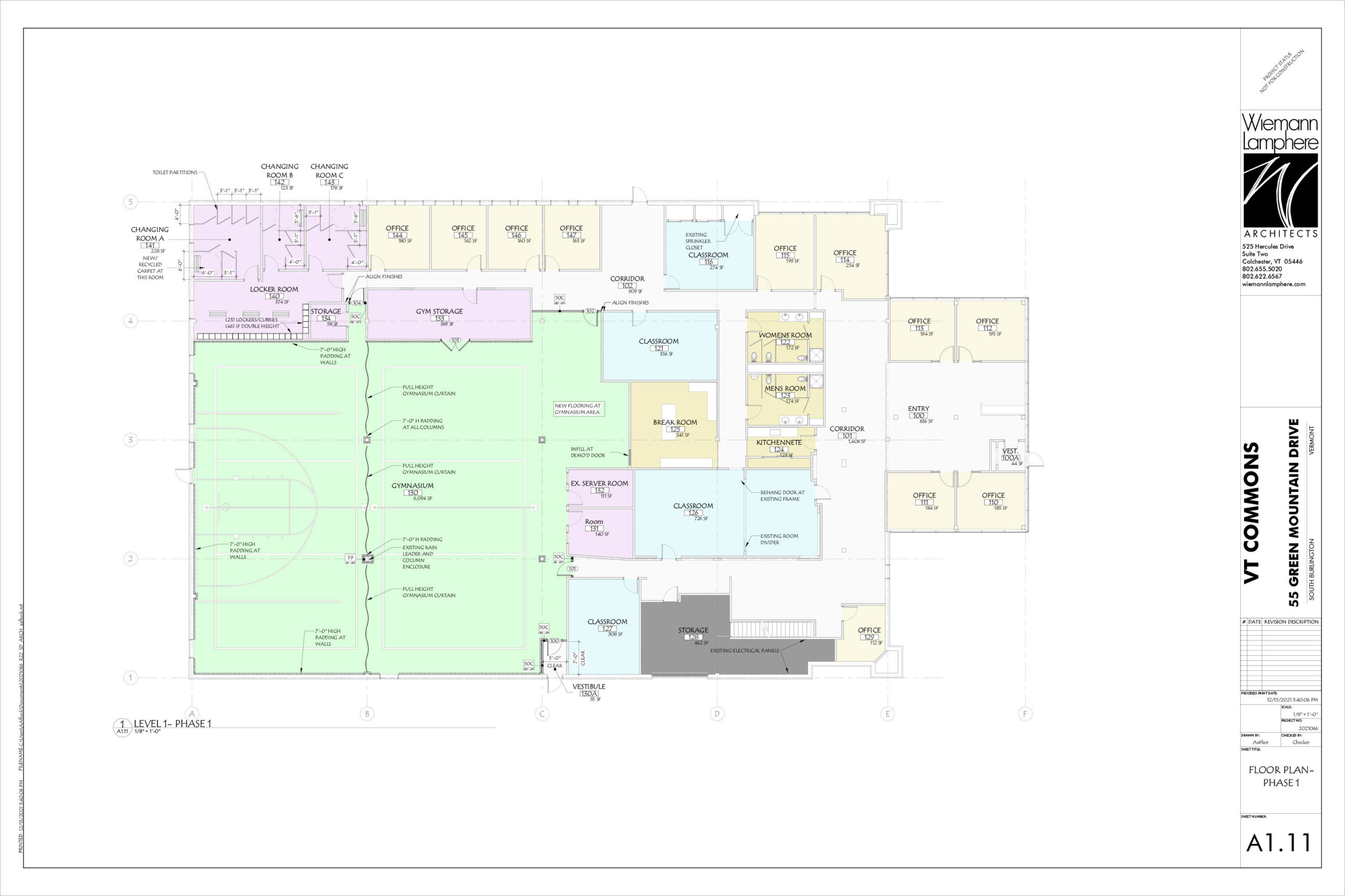
Almost a year ago, the owners of 55 Green Mountain Drive reached out to us about our interest in acquiring their building. The 16,500-square-foot building sits on just under 3 acres of land–everything starting south of the access driveway to UVM’s Horticulture Farm all the way down to Portland Glass. You might have seen it for years with the Stantec sign out front.
The Facilities and Executive Committees of the Board of Trustees immediately leapt into action, reviewing the property in its current state, in terms of viability for the school. If you’ve perused the Strategic Plan portion of the VCS website in the last few years, you’ve seen that pillar referring to Campus Expansion. While we’ve always sought to upgrade and improve our current building and property, our Board has also recognized that the growth and experience of our current and future students would be significantly enhanced with more teaching, learning, and recreational space. And the ongoing growth of the school demands it. Our patience in waiting for the right opportunity paid off.
Since closing on the building in December, the Board and Administration have spent literally hundreds of hours working toward making the expansion of our campus possible. During a busy and active school year, we dedicated hours to making this happen. We’ve secured the permitting from South Burlington and planned a well marked crosswalk with the University of Vermont. The internal planning continues to develop a capital campaign to solidify/secure/forge Vermont Commons future. As with all worthy accomplishments, it is exhaustive and exhilarating work.
What could be more fitting at our silver anniversary than a transformative milestone such as this? It signals positive growth for Vermont Commons and an inspired path towards the future, enhancing our students’ experience with new space for athletics, arts, science, creativity, and learning.
We are excited about building the future together.





